
فصلنامه فرهنگی پیمان شماره ۸۵
کاوش های باستان شناسی در آرامگاه پادشاه اشکانی ارمنستان
نویسنده: شاهن هوسپیان
پیش تر، در مقالهای با عنوان «آرامگاه پادشاهان اشکانی ارمنستان»،[۱] تاریخ و معماری محل دفن پادشاهان اشکانی ارمنستان را، که شاخهای از اشکانیان ایران بودند، در روستای دزوراپ[۲]نزدیک شهر آشتاراک ارمنستان بررسی کردیم. در سه سال گذشته، باستانشناسان ارمنستان، به سرپرستی دکتر هاکوپ سیمونیان به کاوش هایی گسترده در این محل دست زده و نتایج جدید و جالبی به دست آورده اند. هرچند تحقیقات هنوز نهایی نشده، با هدف تکمیل مقالۀ یاد شده خلاصۀ نتایج کاوشهای صورت گرفته را به نظر علاقهمندان می رسانیم.
لازم است پیش از پرداختن به کاوشهای گستردۀ دکتر سیمونیان، که طی ۲۰۱۵ ـ ۲۰۱۷م صورت گرفته، به تحقیقات قبلی نگاهی بیندازیم. در ۱۹۲۲م، یرواند دِر میناسیان و معمار معروف، توروس تورامانیان، کل منطقۀ شمال شهر آشتاراک ازجمله آرامگاه روستای آغزک[۳] را بررسی کردند. هر دوی آنها معتقد بودند که روستا بر روی مکانی متعلق به تمدن اورارتو قرار گرفته است. تورامانیان در خاطرات خود می نویسد:
« آغزک روستای کوچکی است که بر روی سکونتگاهی از دورۀ اورارتو بنا شده است و در این مکان گور دخمهای وجود دارد که استخوانهای پادشاهان ارمنستان در آنجا دفن شده است. بر روی دیوارهای دخمه، نقش های متعلق به قرن چهارم میلادی به چشم میخورد».[۴]
هرچند پاوستوس بیوزانـد و مـوسی خـورنی، مورخان قرن پنجم میلادی، بدون ذکر مکان دقیق، این روستا را محل دفن استخوانهای پادشاهان ارمنستان معرفی کردهاند، اهالی روستا و کارشناسان تاریخ محل دفن آنها را گور دخمهای واقع در این روستا میدانند.
در ۱۹۷۴م، مؤسسۀ باستانشناسی ارمنستان بخشهایی از محوطۀ آرامگاه را خاکبرداری و قسمتهای خارجی قبر را مرمت و محوطۀ آن را دیوارکشی کرد. با خاکبرداری از قسمت جنوبی دخمه، قبری پیدا شد که بر روی آن صفهای چند پلهای قرار داشته و احتمالاً، بر روی صفه صلیبی ستوندار[۵] نصب بوده است. این گونه قبرها در اوایل قرن چهارم میلادی برای شهدای دین در ارمنستان و آسیای صغیر ساخته میشد.
در ۲۰۰۱م، به سرپرستی دکتر سیمونیان در قسمت جنوب غربی محوطه کاوشی صورت گرفت که در نتیجۀ آن آثاری از بنایی متعلق به قرون وسطا و یک قبر و تعدادی ظروف سفالی با تصویر حیوانات پیدا شد. کاوش بعدی در سمت جنوب غربی قبر دخمهای انجام شد. در این قسمت، آثار سه اتاق متعلق به قرون وسطا پیدا شد که در آنها قبرهایی متعلق به سده های هفدهم تا نوزدهم میلادی قرار داشت. در کنار اتاقها، دیواری بود که ردیفهای پایینی آن متعلق به سده های چهارم و پنجم میلادی بود و ردیفهای بالایی همزمان با دیوارهای اتاقها ساخته شده بود. در بررسی مجدد قبر صفهدار، در قسمت جنوبی دخمه، مشخص شد که این قبر پیش از بنای قبر دخمهای در آنجا ساخته شده است. این گروه اطراف کلیسای بازیلیک را نیز که در شمال قبر دخمه ای قرار دارد، خاک برداری کردند در نتیجۀ این خاک برداری تعدادی ظرف سفالی و در سمت شرقی دیوار شمالی، تعدادی قبر پیدا شد که تاریخ ایجاد یکی از آنها همزمان با تاریخ بنای کلیسا یعنی قرن چهارم میلادی است.
اهالی روستا و بسیاری از ارمنیان، از جمله تاریخدانان، سده های متمادی اعتقاد داشتند که استخوانهای پادشاهان آرشاکونیاتس[۶] پس از آوردن به این روستا در گوردخمهای واقع در این روستا دفن شده اند و در این خصوص، تاریخدانان و معماران دلایل بسیاری آورده اند. با این حال، گروهی، با استناد به اینکه مورخان قرن پنجم میلادی فقط نام روستا را ذکر کرده و نامی از محل دفن استخوانها به میان نیاوردهاند، بر این باور بودند که شاید این مکان محل دفن استخوانها نباشد. دلیل دیگری که بر این ادعای خود اقامه می کنند نقش های به کار رفته در گوردخمه است که به دورۀ قبل از دفن استخوانها تعلق دارد.[۷]
کاوشهایی که پیش تر در این منطقه صورت گرفته بود چندان گسترده نبود. کارشناسان ارمنی و روسی در طول نزدیک به یک قرن از این مکان بازدید کرده و نظریههای مختلف و گاه متناقضی را مطرح کرده اند و در سالهای اخیر نیز، تاریخ دان ها نظرات مختلفی دربارۀ این مکان داده اند. درنتیجه، وزارت فرهنگ ارمنستان برای روشن شدن ماهیت این مکان، که دارای اهمیتی خاص برای ارمنیان است، تصمیم گرفت تا به طور کامل آن را خاکبرداری و دربارۀ آن کاوش کند. مسئولیت این کار را به سازمان میراث فرهنگی سپردند. کاوشها با سرپرستی دکتر هاکوپ سیمونیان و با همکاری کارشناسانی چون مری صفریان، تیگران سیمونیان، نانار کلانتریان و یلنا آتویانتس از فوریۀ ۲۰۱۵م آغاز شد.
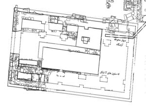
با توجه به نوشتۀ موسی خورنی مبنی براینکه روستای آغزک دارای حصار دفاعی بوده گروه باستانشناسی روستا را به طور کامل بررسی کرد. در نتیجۀ این بررسی، آثار بسیاری از دورههای مختلف از جمله سرستون، تهستون، سنگهای حجاریشده، ظروف و کوزههای سفالی و بسیاری آثار دیگر از روستا به دست آمد. کلیۀ مکانهایی که اشیایی در آنها پیدا شده بود در نقشه نشان داده شده است. در بخش شمال غربی روستا، قطعات کوزهای از دورۀ برنز پیدا شد که نشان می دهد روستا از دورۀ برنز تا کنون دارای سکنه بوده است.
هرچند از کل سطح روستا آثار مختلفی پیدا شد، روستا در قرن چهارم نمیتوانسته به این بزرگی بوده باشد. بنابراین، بررسی برای یافتن مرزهای روستایی آغاز شد که دارای حصار دفاعی بوده. ساخت و سازهای صورت گرفته طی سده های متمادی مشکلاتی را در این مسیر به وجود آورده بود. با این حال، حدود مرزهای روستا در قرون وسطا مشخص شد که مساحتی بالغ بر پنجاه هکتار را دربر می گیرد. محدودۀ روستا با نقطهچین در نقشه نشان داده شده است.
همزمان با این کاوش ها، گروهی دیگر کاوش در محوطۀ آرامگاه را آغاز کردند که مساحت آن نیم هکتار است. در ابتدا، از مکان هایی خاک برداری کردند که در سالهای پیش به طور کامل بررسی نشده بود. در قسمت جنوبی گوردخمهای مربوط به قرن چهارم میلادی، قطعات ستون صلیب ستوندار را، که بر روی قبر دارای صفه قرار داشت، از زیر خاک خارج کردند اما صلیب سنگی روی ستون در محل نبود. چندی بعد تکه ای از آن در کاوشهای سطح روستا پیدا شد.
سپس، کار خاکبرداری از ضلع شمالی کلیسا شروع شد. در این مکان، درختان موی تنومندی قرار داشتند. با کندن کلیه آنها یک ردیف از سنگهای دیوار شمالی کلیسا نمایان شد. بررسیها نشان داد که شمال محوطه صخرهای است و دیوار شمالی کلیسا بر روی صخره بنا شده.
در کنار دیوار شمالی کلیسا، پنج چاهک یافتند با دهانۀ گشاد و عمق ۱/۴۲متر در یکی از آنها، تکههایی از یک ظرف سفالی منقش پیدا کردند که شبیه ظروف کشف شده از شهر دوین،[۸] متعلق به سده های یازدهم و دوازدهم میلادی، بود. این چاهکها، که در سده های نهم تا چهاردهم میلادی حفر شده، احتمالاً محل نگهداری شراب و غلات بوده. درستی یا نادرستی این نظر پس از آزمایش خاکهای داخل آنها تأیید خواهد شد. در ضلع شمالی دیوار کلیسا تعدادی قبر، متعلق به سده های چهاردهم تا شانزدهم میلادی، پیدا شد که به علت احداث باغی در کنار محوطه صدمه دیده بود. در زاویۀ شمال شرقی و پایینتر از کف کلیسا نیز، تابوتی سنگی، متعلق به قرن چهارم میلادی، یافتند که در آن استخوانهای یک مرد جوان قرار داشت.
در قسمت غـربی کلیسا، اتاقی یافتند با ابعـاد ده در ده متـر، متعلـق به قـرون وسطا، که با سنگهای بازالت فرش شده بود. سقف اتاق بر روی ستونهای چوبی قرار داشته. تهستونهای سنگی آن هنوز در همان مکان قرار دارند. خاکبرداری محوطۀ اطراف کلیسا مشخص ساخت که در گوشۀ جنوب غربی آن قسمتی از یک دیوار قرار دارد که تا زیر دیوار کلیسا ادامه یافته است. بررسیها نشان داد که این دیوار پیش از بنای کلیسا در آن مکان وجود داشته و به قبل از قرن چهارم میلادی تعلق دارد. با در نظر گرفتن اینکه پس از رسمیت یافتن دین مسیحیت در ارمنستان معابد تخریب و به جای آنها کلیسا بنا شد ممکن است دیوار زیر کلیسا متعلق به معبدی بوده که در دهۀ نخست قرن چهارم میلادی تخریب شده است.
پس از خاکبرداری از قسمت غربی کلیسا، آثاری از یک آبراهه یافتند که با سنگهای خوشتراش ساخته شده و به سمت جنوب امتداد دارد. در ادامۀ خاکبرداری آبراهه، تالاری ستوندار در بخش غربی محوطه پیدا شد. با خاکبرداری کامل آبراهه ۲۳ متر از آن را از زیر خاک خارج کردند.
تالار ستوندار غربی، همانند اتاق واقع در ضلع غربی کلیسا، با سنگ بازالت فرش شده است و آبراهه از وسط آن میگذرد. تالار دارای ستونهای چوبی بوده که ته ستونهای سنگی آن هنوز در محل خود و در دو سمت آبراهه، قرار دارد. این تالار که بین سدۀ دهم تا سیزدهم میلادی ساخته شده شبیه تالارهای ساخته شده در کاخهای این دوره است. از محوطۀ تالار، ظروف سفالی دارای تزیینات به دست آمد. تعدادی از آنها متعلق به کشور چین و بیانگر آن است که افراد صاحب منصب از این مکان استفاده می کرده اند. همچنین، نشان از ارتباط این منطقه با جادۀ ابریشم دارد.
در ضلع غربی تالار، آثاری از یک آهنگری، متعلق به سدۀ نوزدهم و اوایل سدۀ بیستم میلادی نمایان شد. اسقف هوهانس شاه خاتونیانس در ۱۸۴۲م هنگام بازدید از این مکان از آن یاد کرده است. بررسیها نشان داد که دیوار شرقی این تالار احتمالاً برای ساخت بنایی تخریب و پس از مدتی نیز، تبدیل به گورستان روستا شده است. در قسمت شرقی تالار، مقادیر فراوانی تکه های ظروف سفالی؛ قطعات شیشهای به رنگهای آبی، سبز و زرد؛ تزیینات؛ سکه؛ قسمتهای آهنی دهنی اسب؛ و وسایلی از جنس برنز پیدا شد. همچنین، در این قسمت آجرهایی با نقش پرندگان و حیوانات به دست آمد که قدمت آن با قدمت تالار یکی نیست و احتمالاً، متعلق به بنایی است که در زیر این تالار قرار دارد و زمان ساخت آن به سدۀ چهارم یا پنجم میلادی باز می گردد. بنابراین، این قسمت نیاز به خاکبرداری بیشتر دارد.
دیواری که از زیر ضلع غربی کلیسا شروع میشود به طول ۵ متر به سمت جنوب امتداد می یابد و در انتهای آن، ادامۀ گورستان است. قبرها به چندین دورۀ مختلف، از قرن دهم تا ابتدای قرن هفدهم میلادی تعلق دارند. اجساد در سه ردیف، در دورههای مختلف، بر روی یکدیگر دفن شدهاند. بالاترین ردیف سی تا صد سانتیمتر از سطح زمین فاصله دارد. اسکلت حدود ۱۵۰ نفر به دست آمد که بر روی بعضی از آنها آثار اعدام به چشم میخورد. کمی دورتر از این گورستان، به سمت شرق، قبرهای دیگری پیدا شد که جمعاً ۴۷ اسکلت در آنها قرار داشت. از مجموع آنها ۲۶ اسکلت متعلق به کودکان تا دوازده سالـه است که حـکایت از مرگ و میر کودکان، در یک دورۀ زمانی خاص، احتمالاً به علت شیوع بیماری ای مسری دارد. به گردن یکی از این کودکان، که دختر است، گردنبندی آویخته شده است.
در قسمت شرقی قبرها و در امتداد دیوار شمالی ـ جنوبی سنگهایی منقش و ظروفی سفالی به دست آمد. ظروف منقش شبیه ظروفی است که در شهر دوین پیدا شده و متعلق به سده های یازدهم تا سیزدهم میلادی است. در بین سنگهای منقش، سنگی با نقش یک ببر وجود دارد. در زیر پای آن، پرندهای تصویر شده و ببر در حال تعقیب یک گوزن است.
در جنوب کلیسا و سمت شرقی دیواری که در زیر کلیسا قرار دارد، شش قبر متعلق به چند زن و مرد و کودک پیدا شد که احتمالاً قبرهایی خانوادگی در قرون وسطا بوده. کمی دورتر از این قبرها، به سمت جنوب، نیز اسکلت زنی ۲۵ تا ۳۰ ساله پیدا شد که باردار بوده است.
در ۲۰۱۷م، برای تعویض شاهلولههای آب روستا، شروع به حفاری در آن کردند. با هماهنگی با مسئولان، گروهی از باستانشناسان کانالهای حفاری شده و خاک خارج شده از زمین را مورد بررسی قرار دادند. در نتیجۀ این بررسی، آثار بسیاری شامل اجزای ستون، ظروف سفالی و زیورآلات به دست آمد. در خیابان غربی محوطۀ تحت کاوش، بیل مکانیکی به مجموعهای از کوزههای بزرگ برخورد که در کنار یکدیگر قرار داشتند و به نسبت سالم باقی مانده بودند. متأسفانه، به علت ضربۀ بیل کلیۀ آنها شکسته شد. ۳۰۰ متر دورتر از این کوزهها و در جنوب آنها، نیز تعدادی کوزۀ دیگر پیدا شد. ارتفاع همۀ این کوزهها ۶۰ سانتیمتر است. در بین آثاری که از روستا پیدا شده، مجسمۀ پرندهای وجود دارد به طول ۱۹ سانتیمتر که به نسبت سالم مانده است. این پرنده شبیه پرنده ای است که بر روی سنگ منقوش به تصویر ببر نقش شده است.
ساختمان کلیسا، که به شکل بازیلیک سه ناوی و از نوع کلیساهای قرن چهارم میلادی است، توجه گروه باستان شناسی را به خود جلب کرده بود، به ویژه اینکه در کاوشهای نه چندان کاملی که در ۲۰۰۱م در کلیسا صورت گرفته بود در قسمت نمازخانه دو قبر متعلق به قرون وسطا پیدا شده بود. در کاوشهای اخیر نیز، در زیر ضلع غربی کلیسا دیواری کشف شد که قدمت آن بیشتر از ساختمان کلیسا است. بنابراین، تصمیم گرفتند که آن را خاکبرداری کنند تا به کف اصلی بنا برسند.
در قسمت محراب کلیسا، خاک به ارتفاع ۵ ـ ۴۰ سانتیمتر برداشته و مشخص شد که محراب را بر روی صخره ساخته و سطح ناهموار صخره را با ریختن خاک و خرده سنگ بازالت صاف کردهاند. با خاکبرداری از اطراف ستونها مشخص شد که صخرۀ زیر کلیسا دارای شیب و در نتیجه، کف تهستونهای شمالی بالاتر از تهستونهای جنوبی است. بنابراین، برای همسطح کردن تهستونهای جنوبی زیر آن را با سنگ پر کردهاند.
پس از خاکبرداری کامل کلیسا، مشخص شد که کف اولیۀ آن با سنگ بازالت پوشانده شده است. طی سده های بعدی و پس از ویرانی کلیسا، این مکان کاربردی اقتصادی داشته. قسمتهایی از این سنگها برداشته شده و سه چاهک شبیه چاهکهای شمال کلیسا برای نگهداری مواد غذایی در آن حفر کرده اند. همچنین، چهار تنور و یک کوزه نیز پیدا شد. در امانتخانه، واقع در جنوب محراب، مهری از جنس سنگ به قطر ۴/۸ سانتیمتر و ضخامت ۴/۴۵ سانتیمتر یافتند که بر روی آن نقش صلیب با بازوان مساوی قرار دارد که برای مهر زدن بر روی نان مقدس استفاده می شده. با در نظر گرفتن نقش صلیب مهر میبایست متعلق به قرن چهارم تا ششم میلادی باشد.
شاید، جالبترین شئ کشف شده در محوطۀ آرامگاه آغزک سه صندوق سنگی باشد که در کف کلیسا پیدا شد. این کشف فرضیههای قبلی دربارۀ محل آرامگاه پادشاهان آرشاکونیاتس در گوردخمه را نقض کرد و سؤال های جدیدی را پیش کشید.
با پایان خاکبرداری، مشخص شد که در داخل صخرۀ کف کلیسا و در قسمت جلوی محراب، سه حفره وجود دارد که در داخل آنها سه صندوق سنگی قرار داده و آنها را با سنگ کف پوشاندهاند. دو صندوق در قسمت شمالی و یک صندوق نیز در قسمت جنوبی محراب بود. جالب اینکه کلیسا پس از ویرانی طی سال های متمادی کاربردهای مختلفی داشته است اما این صندوقهای سنگی دستنخورده باقی مانده بودند.
صندوق اول ۶۸ سانتیمتر دورتر از حاشیۀ جنوبی محراب قرار داشت. ابعاد درِ سنگی آن ۶۰ در۷۰ سانتیمتر و ضخامت آن ۱۲ سانتیمتر است. صندوق ۴۰ سانتیمتر عمق، ۶۰ سانتیمتر عرض و ۶۹ سانتیمتر در بالا و ۵۹ سانتیمتر در پایین طول دارد. هرچند درِ آن ترک خورده محکم به صندوق وصل است و مانع نفوذ آب و خاک به داخل آن شده. در داخل صندوق، استخوانهای چند زن و مرد و کودک به صورت درهم قرار گرفته بود.
صنـدوق دوم ۲۰۰ سانتـیمتـر از ضلـع شمـالی محـراب فاصلـه داشت. درِ صنـدوق از دو طـرف شیـب دارد. طول آن ۸۰ سانتـیمتر و عـرض شیـبها ۵۰ و ۵۳ سانتـیمتر است. ضخیمترین قسمت آن ۳۰ سانتیمتر است. در کنار صندوق، صلیبی نقش شده که بازوی بالای آن روی در و بازوی پایین آن روی بدنۀ صندوق قرار دارد و بدین وسیله، طبق سنت کلیسای ارمنستان، صندوق لاک و مهر شده است. در این صندوق نیز، استخـوانهای چـند تن به صـورت درهم قرار داشت.
وضعیت قرار گرفتن صندوق سوم با دو صندوق دیگر فرق داشت. ایـن صنـدوق، که در کنار صنـدوق دوم بـود، بالاتر از دو صنـدوق دیگر قـرار داشـت به طـوری کـه درِ آن هم سطح سنگ فرش کف کلیسا بود. در داخل آن، مانند دو صندوق دیگر، استخوانها به صورت درهم قرار گرفته بود.
علت اینکه چرا استخوانهای چند نفر شامل زن و مرد و کودک را در یک صندوق قرار داده اند در مقالۀ «آرامگاه پادشاهان اشکانی ارمنستان» توضیح داده شده است. به دستور شاپور ساسانی استخوانهای پادشاهان و خانوادۀ آنان را از قبر خارج کردند و به احتمال بسیار، همه را یکجا در کیسه یا ظرفی قرار دادند. پس از اینکه استخوان ها به دست ارتش ارمنستان افتاد امکان جدا کردن آنها از یکدیگر وجود نداشت. بنابراین، آنها را در سه صندوق جا دادند و در کف کلیسا، دفن کردند.
بررسی اولیۀ استخوانها نشان داد که در بین آنها استخوانهای سوخته نیز وجود دارد. از آنجایی که جسد پادشاهان خاندان آرداشسیان[۹] را پس از سوزاندن دفن کردهاند این فرضیه وجود دارد که استخوانهای به دست آمده به دو سلسلۀ حکومتی مختلف در ارمنستان تعلق داشته باشد.
در ۲۰۰۱م، در نتیجۀ گمانـه زنی در امتـداد دیوار جنوبی محـوطه دیواری ساخـته شده از سنگهای خوشتراش و ملاط نمایان شد. بنابراین، تصمیم گرفتند ضلع جنوبی را به طور کامل خاک برداری کنند. این قسمت، با بتون پوشانده شده بود و قسمتی از بنا نیز، خارج از دیوارهای محوطه قرار داشت و در زیر کوچۀ کناری ادامه یافته بود. با برداشتن بتون و آسفالت کوچه مشخص شد که لایههای متعلق به دو دوره بر روی یکدیگر قرار گرفته اند. پس از خاکبرداری کامل، تالاری ستوندار به مساحت ۴۵۰ متر مربع با جهت شرقی ـ غربی پیدا شد که ورودی آن به عرض ۱/۷۵ متر در قسمت غربی دیوار شمالی قرار دارد. این گونه تالارها، با در نظر گرفتن پلان و نحوۀ چیدن سنگها، متعلق به دورۀ پیش از قرن چهارم میلادی است. نمونهای از این تالارها در قلعۀ گارنی [۱۰] نیز وجود دارد.
تالار دارای هشت ستون با مقطع T شکل در دو ردیف چهارتایی و هشت ستون متصل به دیوارهای شمالی و جنوبی است. در دورۀ بعدی، با کشیدن دیوار بین ستونها آن را به چندین اتاق تبدیل کردهاند. هرچند پلان این تالار شبیه کلیساهای بازیلیک سه ناوی است با پیدا شدن بیش از ۷۰ قطعه سنگ رنگآمیزی شده و تصاویر حیوانات، که متعلق به دیوارها بوده، شکی نیست که تالار کاربردی همانند تالار کاخ داشته. در بین اشیای پیدا شده، در قسمت وسط تالار، بخاری قابل حملی پیدا شد با ارتفاع ۳۰ سانتیمتر که بر روی دهانه دارای نقوش سر قوچ است. کاوشهای این قسمت هنوز کامل نشده است.
گفتنی است دیوار شرقی تالار با دیوار شرقی قبر دخمهای و کلیسا در یک خط قرار دارد و همۀ آنها در یک دورۀ زمانی ساخته شده است.
طی کاوشهایی که در ۲۰۱۵ ـ ۲۰۱۷م صورت گرفت در مجموع یازده هزار و پانصد شئ مختلف متعلق به دوره های گوناگون، از قرن چهارم تا اوایل قرن بیستم میلادی، شامل خاچکار[۱۱]، سنگهای حجاری شده، سرستون، تهستون، ظروف سفالی و شیشهای، زیورآلات، کوزه در اندازههای مختلف و … در محوطه و سطح روستا پیدا شد.
در خاطرات اسقف هوهانس شاه خاتونیانس، در نیمۀ نخست قرن نوزدهم میلادی، آمده که در این مکان گورستانی با تعدادی خاچکار قرار داشته است اما طی یک قرن تمامی قبرها با خاک پوشانده شد و به دلیلی نامعلوم هیچ خاچکار سالمی به دست نیامد.
از اشیای پیدا شده سه هزار و ۷۶۰ شئ قطعاتی از ظروف سفالی رنگآمیزی شده است، شبیه نمونه هایی که از شهرهای آنی[۱۲]، دوین و لوری[۱۳] به دست آمده. ۱۸۰ قطعه نیز سنگ های رنگآمیزی شده با نقوش حیوانات است که بیشترین تعداد آنها در تالار جنوبی پیدا شده. در بین آنها، سنگی با تصویر طاووس وجود دارد.
از زیر پای طاووس، چهار رشته آب جاری است که احتمالاً اشاره به چهار رود جاری در بهشت دارد که در کتاب مقدس از آن یاد شده. سنگ منقوش به تصویر طاووس دارای ابعاد ۲۴ در۳۳ سانتیمتر و قطر ۵ سانتیمتر است و تنها سنگ منقوشی است که سالم به دست آمده. براساس اندازه های این سنگ میتوان ابعاد دیگر سنگهای به کار رفته در دیوارهای تالار جنوبی را نیز دریافت.
با تمام مشکلاتی که به علت ساخت و ساز خانههای جدید در روستا به وجود آمده گروه سعی کردند تا حد ممکن بخشی از روستا را که احتمالاً دارای حصار دفاعی بوده به دقت بررسی کنند. نتیجۀ این بررسی کشف اشیای مختلف از دورههای گوناگون بود.
از کل محوطه یازده سکه به دست آمد که متعلق به سده های دوازدهم تا بیستم میلادی است. از این تعداد دو سکۀ برنزی متعلق به دورۀ سلجوقی، یک سکۀ نقره متعلق به دورۀ جلالیان، یک سکۀ برنزی مغولی و مابقی سکههای متعلق به روسیۀ تزاری و دورۀ شوروی است.
هرچند نتیجۀ آزمایش کربن استخوانها، برای تعیین قدمت آنها، هنوز اعلام نشده و کاوشهای باستانشناختی همچنان ادامه دارد تا همین جا بسیاری از مسائل مبهم آشکار و سؤال های جدیدی مطرح شده است. قرار داشتن استخوانها به صورت درهم در صندوقها به این فرضیه قوت بخشیده که آنها متعلق به پادشاهان اشکانی ارمنستان است اما، در صورت اثبات صددرصد آن، این سؤال پیش میآید که پس، گوردخمه ای که قرنها اعتقاد بر این بود که قبر پادشاهان آرشاکونیاتس است متعلق به چه کسانی است؟ همچنین، جسد مرد جوانی که در تابوت سنگی، در قسمت شمالی کلیسا، دفن شده بود به چه کسی تعلق دارد؟
با در نظر گرفتن مکان پیدا شدن استخوانها و سبک معماری و نقش های گور دخمهای که احتمالاً متعلق به چندین دهه پیش از دفن استخوانهاست گوردخمه میبایستی به یک حاکم یا پادشاه تعلق داشته باشد. تالار ستوندار جنوبی نیز گواه وجود اقامتگاه یک حاکم در این منطقه است. بررسی حفرههای کشف شده در کف کلیسا، که صندوقهای سنگی را درون آن قرار داده بودند، مشخص می سازد که کلیسا هنگام دفن صندوقها وجود داشته است . بنابراین، قدمت کلیسا، گوردخمه و تالار جنوبی باید به چندین دهه قبل از واقعۀ لشکرکشی شاپور ساسانی به ارمنستان بازگردد، هرچند برخی معتقدند که گوردخمه در همان زمان برای منحرف کردن دشمن ساخته شده تا به مکان اصلی استخوانها دسترسی نداشته باشند.
امید است با ادامه خاکبرداری در اطراف و ضلع شرقی محوطۀ آرامگاه و تالار جنوبی و با مشخص شدن نتیجۀ آزمایش استخوانها و باقی ماندۀ مواد غذایی یافت شده در ته کوزهها و مطالعۀ دقیق تر اشیای پیدا شده ابهامات بیشتری برطرف شود. برای ارمنیان پیدا شدن استخوانها، به شکلی که توضیح دادیم، تأییدی بر گزارش های مورخان قرن پنجم ارمنستان است. این موضوع عموم مردم و مورخان را به هیجان آورده و اهمیت این مکان بیشتر از قبل شده است و هر ساله، در این مکان در روز ۲۸ آوریل مراسم خاصی با حضور هزاران تن، برای بزرگداشت پادشاهان آرشاکونیاتس، برگزار میشود.
پی نوشت ها:
شاهن هوسپیان، «آرامگاه پادشاهان اشکانی ارمنستان»، پیمان، ش۷۲ (تابستان۱۳۹۴): ۲۰۸ ـ ۲۱۳.
Dzorap ، نام امروزی روستای آغزک
Aghzk
توروس تورامانیان، تاریخ معماری ارمنستان (ایروان: دانشگاه دولتی ایروان، ۲۰۱۳ )، ص ۱۴۱.
برای اطلاعات بیشتر درباره صلیبهای ستوندار رک: شاهن هوسپیان، «خاچکار» (بخش اول)،پیمان، س۲۰، ش۸۰ (تابستان۱۳۹۶): ۸ ـ ۴۸.
مورخان ارمنی خاندان اشکانی ارمنستان را با نام آرشاکونیاتس معرفی کردهاند.
7.Vahagn Grigoryan, The problem of dating and belonging of the mausoleum in Aghzk (Yerevan: s.n. ۲۰۰۵)
Dvin ، پایتخت ارمنستان در زمان حکومت خاندان آرشاکونیاتس که آثار آن در دشت آرارات، در نزدیکی شهر وِدی ارمنستان، به جای مانده است.
این خاندان طی سالهای ۱۸۹ قم تا نخستین سال میلادی در ارمنستان حکومت کردند.
برای اطلاع در این خصوص ر.ک: شاهن هوسپیان، «معبد گارنی»، پیمان، ش ۶۰ (تابستان۱۳۹۱): ۱۹۲ ـ ۲۱۶.
سنگ صلیب یا چلیپاسنگ
Ani ، پایتخت ارمنستان بین سده های دهم تا یازدهم میلادی که ویرانههای آن در شرق ترکیه امروزی و روی خط مرزی ارمنستان قرار دارد.
Lori ، پایتخت ارمنستان در زمان حکومت خاندان آرشاکونیاتس که آثار آن در دشت آرارات نزدیک شهر وِدی ارمنستان قرار دارد.
منابع:
تورامانیان، توروس. تاریخ معماری ارمنستان.ایروان: دانشگاه دولتی ایروان، ۲۰۱۳ .
هوسپیان، شاهن. «معبد گارنی». پیمان. ش ۶۰ .تابستان۱۳۹۱: ۱۹۲ ـ ۲۱۶.
ـــــــ . «آرامگاه پادشاهان اشکانی ارمنستان». پیمان. ش۷۲.تابستان۱۳۹۴: ۲۰۸ ـ ۲۱۳.
ـــــــ .«خاچکار» (بخش اول).پیمان. س۲۰. ش۸۰.تابستان۱۳۹۶: ۸ ـ ۴۸.
rigoryan, Vahagn. The problem of dating and belonging of the mausoleum in Aghzk. Yerevan: s.n. 2005
«Hushardzan”,Scientific research center of the historical and cultural heritage, annual reports 12 and 13. Yerevan 2018: 5 ـ ۵۲
منابع تصویری:
متن مقالۀ دکتر هاکوپ سیمونیان.
بایگانی شخصی نگارنده.


























































