
فصلنامه فرهنگی پیمان شماره ۳۴
مروری بر کلیساهای ارامنه استان آذربایجان شرقی
نویسنده: نادره شجاع دل
اشاره
در شمارهٔ گذشتهٔ فصلنامهٔ پیمان در مقاله ای تحت عنوان مروری بر کلیساهای ارامنهٔ استان آذربایجان غربی پس از بحث پیرامون تاریخ ترویج مسیحیت در ارمنستان سبک های معماری کلیساهای ارامنه را بررسی کردیم و سپس ضمن معرفی کلیساهای ارامنه شناسایی شده در استان آذربایجان غربی به تفکیک شهرستان ها تعدادی از مهم ترین آنها را به لحاظ خصوصیات معماری بررسی و معرفی کردیم. در این شماره نگارنده قصد دارد در ادامهٔ مبحث فوق به معرفی و بررسی کلیساهای ارامنهٔ آذربایجان شرقی بپردازد.
کلیساهای ارامنهٔ شناسایی شده در آذربایجان شرقی به شرح زیرند:[۲]
تبریز و حومه:
نام – کلیسا – قدمت
۱-کلیسای مریم مقدس محلهٔ قالا* سدهٔ هجدهم میلادی
۲-کلیسای مریم ننه محله مارالان* سدهٔ هجدهم و نوزدهم میلادی
۳-کلیسای سرکیس مقدس محله لیلاوا* سدهٔ نوزدهم میلادی
۴-کلیسای هوانس مقدس – دروازه طاق نامشخص (موجود نیست)
۵-کلیسای وار وارا – موجومبار سدهٔ هجدهم میلادی
۶-کلیسای هریپسیمه – موجومبار* سدهٔ هفدهم میلادی
۷-کلیسای سورپ انرویت – موجومبار سدهٔ نوزدهم میلادی
۸-کلیسای هوانس مقدس – سهرل* سدهٔ نوزدهم میلادی
۹-کلیسای گریگور الجامک سدهٔ هجدهم میلادی (تبدیل به مسجد شده است)
۱۰-کلیسای پیر – میناور نامشخص
۱۱-کلیسای سورپ سرکیس – دهخوارقان سدهٔ شانزدهم میلادی (موجود نیست)
مراغه و حومه:
نام کلیسا – قدمت
۱-کلیسای هوانس مقدس* سدهٔ هجدهم میلادی
۲-کلیسای بغوس سدهٔ هجدهم میلادی (موجود نیست)
۳-کلیسای سرکیس سدهٔ هجدهم میلادی (موجود نیست)
۴-کلیسای حضرت مریم پهراوا سدهٔ هجدهم میلادی (نیمه ویران)
۵-کلیسای سرکیس مقدس آقاجاری سدهٔ هجدهم میلادی (نیمه ویران)
حومه جلفا:
بر سر راه جلفا به کلیسای سنت استپانوس در ساحل جنوبی رود ارس منطقه سرسبزی به نام دره شام وجود دارد. در این منطقه نُه کلیسا زیر شناسایی شده اند:
نام کلیسا – قدمت
۱-کلیسای مریم مقدس* سدهٔ شانزدهم میلادی
۲- کلیسای گئورگ مقدس* سدهٔ نوزدهم میلادی
۳-کلیسای سرکیس مقدس (سیاه)* سدهٔ شانزدهم و هفدهم میلادی
۴-کلیسای آندریاس نامشخص (موجود نیست)
۵-کلیسای چوپان* سدهٔ نوزدهم میلادی
۶-زیارتگاه های هوانس مقدس سدهٔ هجدهم میلادی
۷-کلیسای مریم مقدس جلفای قدیم سدهٔ نوزدهم میلادی (ویران شده)
۸-وانک آمناپرگیچ سدهٔ چهاردهم میلادی (ویران شده)
۹- کلیسای سنت استپانوس* سدهٔ دهم تا دوازدهم میلادی
منطقه ارسباران:
نام کلیسا – قدمت
۱-کلیسای روستای آغاخان نامشخص
۲-کلیسای روستای خانقاه سدهٔ هجدهم میلادی
۳-کلیسای روستای قشواق سدهٔ هجدهم میلادی
۴-کلیسای روستای غولودی سدهٔ هجدهم میلادی
۵-کلیسای روستای گرماناو نامشخص
۶-کلیسای روستای گزمیمت نامشخص
۷-کلیسای روستای میلکی دی نامشخص
۸-کلیسای روستای نپشت نامشخص
۹-کلیسای روستای کلا لا نامشخص
۱۰-کلیسای روستای اوغان نامشخص
۱۱- کلیسای روستای امره دول نامشخص
۱۲-کلیسای روستای سوا هوخ نامشخص
۱۳-کلیسای روستای وارطاناش نامشخص
۱۴-کلیسای روستای وینه سدهٔ هفدهم میلادی(تبدیل به مسجد شده است)
۱۵-کلیسای روستای کاراگلوخ سدهٔ هجدهم میلادی
۱۶-کلیسای روستای قاسموشن سدهٔ هفدهم میلادی
۱۷-کلیسای روستای تازه کند سدهٔ هجدهم میلادی
۱۸-کلیسای روستای لوما نامشخص
۱۹-کلیسای روستای هوژعلیا نامشخص
۲۰-کلیسای روستای اوکوتون نامشخص
حال به بررسی خصوصیات معماری چند مورد از کلیساهای مستندسازی شده می پردازیم:
کلیسای سنت استپانوس
این کلیسا در پانزده کیلومتری غرب جلفا در نزدیکی روستای دره شام در دره ای سرسبز و زیبا واقع شده است. استپانوس مقدس یکی از هفت نفری بود که مراسم تحلیف او به دست حواریون عیسی مسیح صورت گرفت. او به سال ۳۷ میلادی به دست یهودیان اورشلیم به شهادت رسید. ارامنه به پاس احترامی که برای استپانوس مقدس قائل بودند نام وی را بر روی این مجموعه فرهنگی مذهبی نهاده اند.
تاریخ بنای کلیسای استپانوس مقدس دقیقاً مشخص نیست ولی قدیمی ترین سندی که از وجود وانکی در این منطقه آگاهی می دهد مربوط به سال ۶۴۹ میلادی است. این بنا در طول تاریخ از جمله در حملات سلجوقیان و مغول دستخوش خسارت شده و مجدداً بازسازی شده است.
مساحت این مجموعه ۳۴۶۳ متر مربع بوده و بخشی که کلیسا در آن واقع شده با بخش فرهنگی مذهبی که دربخش جنوبی مجموعه واقع شده است اختلاف سطح داشته و از ضلع جنوبی هشتی ورودی با پله هایی می توان به آن راه یافت. در قسمت شرقی محوطه وانک بخشی که پشت محراب کلیسا واقع شده است فضاهای خدماتی نظیر آشپزخانه، نانوایی و انبارها واقع شده اند. پیرامون وانک با رویی عریض و مرتفع با سنگ لاشه و ملات گل با هفت برج کشیده شده است. ورودی مجموعه هشتی مستطیل شکلی به ابعاد ۱۰ * ۵ متر با طاق ضربی با سنگ لاشه است.
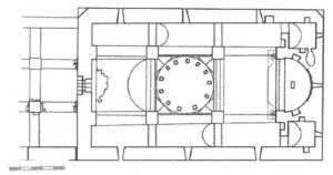
پلان کلیسا صلیبی شکل و به ابعاد ۱۳/۹ * ۱۲/۸ متر است. در وسط صحن داخلی کلیسا چهار ستون قطور با سنگ های سیاه تراش دار واقع شده اند که گنبد ۱۶ضلعی عظیم و مرتفع کلیسا بر روی آنها استوار شده است. برج ناقوس چهاروجهی و مستطیل شکل بنا نیز در سه طبقه احداث شده. تزیینات بنا شامل حجاری ها و نقاشی های نماهای خارجی و داخلی است.
کلیسای هریپسیمه موجومبار
این کلیسا در چهل کیلومتری شمال تبریز به سوی مرند در روستای موجومبار واقع شده است. هریپسیمه راهبه زیبای رومی بود که در مخالفت با پیشنهاد ازدواج قیصر دوم به سوی شرق گریخت و به دست تیرداد پادشاه ارمنستان به قتل رسید. این کلیسا به یادبود وی در سدهٔ دوازدهم میلادی ساخته و آخرین بار به سال۱۶۹۱ میلادی بازسازی شد. این بنا پلان مستطیلی شکلی به ابعاد ۸/۲ * ۱۳متر دارد و فرم پلان آن بازیلیک بوده و شامل یک ناو مرکزی وسیع و دو ناو جانبی کوچک است.

محراب در ضلع شرقی پلان و سه ورودی در اضلاع شمالی، جنوبی و غربی تعبیه شده است. در وسط پلان چهار ستون سنگی واقع شده و در سه دیوار شمالی، جنوبی و غربی پایه ستون های سنگی تراشدار کار گذاشته شده و پوشش کلیسا که با سنگ لاشه است بر روی این ستون ها و پایه ستون ها اجرا شده است. از آنجا که پوشش ناو مرکزی پلان مرتفع تر از ناوهای جنبی است از این رو سقف کلیسا از خارج شیب دار است. مصالح عمدهٔ به کار رفته در بنا سنگ است. این بنا به شماره ۷۷۸ در فهرست آثار ملی کشور به ثبت رسید.
کلیسای مریم مقدس دره شام
کلیسای مریم مقدس در ارتفاعات دره شام جلفا واقع شده است و قدمت آن به سال ۱۵۱۸ میلادی باز می گردد. این بنا پلانی مستطیل شکل به ابعاد ۱۳/۵ * ۲۲/۳ متر دارد و چهار ستون سنگی مربع شکل در وسط پلان واقع شده است که گنبد آجری بنا با دوازده نورگیر بر روی آنها احداث شده. مصالح عمدهٔ به کار رفته در بنا سنگ لاشه و آجر با ملات گل است.
کلیسای چوپان دره شام
کلیسای آندره ورتی یا چوپان در ارتفاعات دره شام جلفا واقع شده است و قدمت آن به سال۱۸۳۶ میلادی می رسد. پلان کلیسا از خارج مستطیلی به ابعاد ۵/۷ * ۷/۷متر و از داخل صلیبی شکل است. در وسط پلان صلیبی شکل گنبد سنگی عرقچین بنا با ساقه مرتفع واقع شده. این کلیسا محل عبادت چوپانان ارمنی نشین دره شام بوده است.
کلیسای هوانس سهرل
کلیسای هوانس سهرل در۳۵ کیلومتری تبریز به مرند در روستایی به همین نام واقع شده است. قدمت این بنا به سال ۱۸۴۰میلادی می رسد که بر روی ویرانه های کلیسایی از سده های پنجم و ششم میلادی به وسیلهٔ یکی از ثروتمندان ارمنی به نام هاگوبوف و به دست معماران روسی ساخته شده است. این کلیسا پلانی به طول ۱۸ متر دارد. عرض آن تا جلوی صحن محراب ۷/۵متر و بعد از آن ۵/۴ متر است.


پوشش سقف کلیسا شامل سه گنبد متفاوت است: گنبد کوچک عرقچین بر روی محراب، گنبد بزرگ مخروطی با ساقه مرتفع بر روی تالار مرکزی و گنبد فضای ورودی که برج ناقوس کلیسا به گنبدی مخروطی ختم می گردد. مصالح عمده به کار رفته در بنا آجر است. تزیینات بنا شامل کاربندی های فضای زیر گنبدها و قاب بندی های دیوارهای نمای خارجی است.
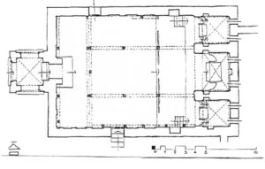
کلیسای هوانس مراغه
کلیسای هوانس در داخل شهر مراغه واقع شده است و قدمت آن به دوره صفویه می رسد. پلان این کلیسا مستطیلی به ابعاد ۱۸/۵ * ۱۲/۵متر به فرم بازیلیک با یک ناو میانی وسیع و دو ناو جانبی است و سه ورودی آن در اضلاع غربی، جنوبی و شمالی قرار دارد. در صحن کلیسا دو ردیف ستون چوبی استوانه ای قرار دارد که در هر ردیف سه ستون واقع شده است. پوشش چوبی سقف بر روی این ستون ها اجرا شده.
کلیسای مریم مقدس تبریز
این کلیسا در محلهٔ قالا (قلعه) تبریز واقع شده است و قدمت آن به سال ۱۷۸۵ میلادی می رسد که بزرگ ترین و قدیمی ترین کلیسای ارامنه شهر تبریز است. پلان این بنا صلیبی شکل است. چهار ستون قطور سنگی در وسط پلان قرار گرفته و گنبد مرکزی بر روی این ستون ها اجرا شده است. مصالح عمده به کار رفته در بنا سنگ و آجراند و تزیینات بنا در نمای خاص آجری آن است.

کلیسای سرکیس مقدس تبریز
این کلیسا در محلهٔ لیلاوا شهر تبریز واقع شده است. قدمت این بنا به سال۱۸۲۱ میلادی می رسد که به وسیلهٔ شخصی به نام پطروسیان بنا شده است. پلان کلیسا صلیبی شکل است و در وسط آن چهار ستون مرتفع آجری با پایه سنگی واقع شده اند که گنبد مخروطی شکل مرکزی کلیسا با ساقه مرتفع بر روی این ستون ها اجرا شده است. مصالح عمده به کار رفته در بنا آجر و سنگ است و تزیینات بنا شامل تصاویری از حضرت مریم، حضرت مسیح، گریگور روشنگر و سایر قدیسان ارمنی است.

کلیسای مریم ننه تبریز
این کلیسا در محله مارالان شهر تبریز واقع شده است و قدمت آن به دورهٔ قاجاریه می رسد ولی قسمت سالن اصلی آن در دوره پهلوی بازسازی شده است. این بنا پلانی صلیبی شکل به ابعاد ۶/۸ * ۲۰متر دارد. سقف قسمت سالن اصلی که در دوره پهلوی بازسازی شده است به صورت تخت اجرا شده ولی سقف اطاقک محراب پوشش گنبدی با کاربندی دوازده ضلعی اختری دارد. مصالح عمده به کار رفته در بنا سنگ، خشت، آجر و چوب است. تزیینات بنا شامل آجرکاری نمای داخلی، کره بندی پوشش زیر سقف گنبد و قاب بندی های آجری در نمای خارجی بنا است.

منابع:
استرزیو وسکی، یوهان. هنر معماری در ارمنستان و در اروپا. وین،۱۹۱۸ .
آراکلیان، واروژان. ((تاریخچه و روند شکل گیری بناهای مذهبی ارمنیان در ایران))، در مجموعه مقالات کنگرهٔ تاریخ معماری و شهرسازی ایران،۱۳۷۸، ج۳ .
فصلنامهٔ پیمان، شماره های۲۳ ، ۲۷ و۳۱ .
مرکز اسناد میراث فرهنگی و گردشگری آذربایجان شرقی.
هویان، آندرانیک. کلیساهای ارمنیان ایران. انتشارات سازمان میراث فرهنگی کشور،۱۳۸۲ .
Novell, Alpajo. Ricerca Sull Architelura Armena Iran. Millano, 1978, Vol II, No 18.
پی نوشت ها:
۱-عضو هیئت علمی سازمان میراث فرهنگی و گردشگری.
۲-کلیساهای شناسایی شده از سوی میراث فرهنگی آذربایجان شرقی با علامت * مشخص شده اند.








































